Rovinj,stan i poslovni prostor-ulica Švalba- na samom moru-230m2
Detalji
- Lokacija:
- Rovinj
- Transakcija:
- Za prodaju
- Vrsta nekretnine:
- Stan/Apartman
- Ukupan broj soba:
- 12
- Spavaće sobe:
- 3
- Kat:
- Prizemlje
- Ukupno katova:
- 4
- Površina:
- 230 m2
Opis
Remax centar nekretnina iz svoje ponude izdvaja:
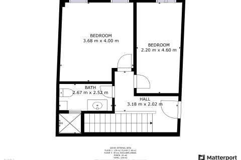
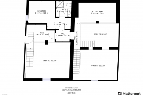
Prodajemo savršenu nekretninu-pravi raritet ,dvoetažni stan na samom moru ukupne korisne površine 230m2.
Stan je kompletno renoviran 2010.godine,kad je doslovce sve promjenjeno,od samih instalacija do betonskih ploča i kvalitetnih izolacija.
Nekretnina se proteže kroz 2 katastarske čestice,te je po volji budućeg vlasnika vrlo lako moguće odvojiti u dvije stambene jedinice,obje sa
svojim ulazom,i obje sa svojom terasom na samom moru.
Sada je prostor koncipiran kao jedna jedinstvena jedinica podređena čistom hedonizmu;
sastoji se od 3 spavaće sobe,3 kupaonice,radnog kutka te 2 ogromna dnevna boravka s kuhinjom,oba sa direktnim izlazom na terasu
koja se nalazi na samom moru.
Nekretnina se prodaje opremljena sa svim kvalitetnim namještajem i uređajima,te kao takva spremna za korištenje odmah.
Prodajemo savršenu nekretninu-pravi raritet ,dvoetažni stan na samom moru ukupne korisne površine 230m2.
Stan je kompletno renoviran 2010.godine,kad je doslovce sve promjenjeno,od samih instalacija do betonskih ploča i kvalitetnih izolacija.
Nekretnina se proteže kroz 2 katastarske čestice,te je po volji budućeg vlasnika vrlo lako moguće odvojiti u dvije stambene jedinice,obje sa
svojim ulazom,i obje sa svojom terasom na samom moru.
Sada je prostor koncipiran kao jedna jedinstvena jedinica podređena čistom hedonizmu;
sastoji se od 3 spavaće sobe,3 kupaonice,radnog kutka te 2 ogromna dnevna boravka s kuhinjom,oba sa direktnim izlazom na terasu
koja se nalazi na samom moru.
Nekretnina se prodaje opremljena sa svim kvalitetnim namještajem i uređajima,te kao takva spremna za korištenje odmah.
Ostale prostorije
- Okućnica: nema okućnice
- Površina balkona/lođe/terase: 30 m2
Karakteristike
- Roštilj: nema
- Nekretnina (stanje): dovršena
- Stil gradnje: autohtoni
- Razred energetske učinkovitosti: U izradi
- Lift: ne
- Pristup invalidima: uz manju adaptaciju
- Dimnjak: ima
- Nekretnina se prodaje/iznajmljuje: namještena
- Bazen: nema
- Vrt: nema
Parking
- Parking: ne
- Natkriveni parking: ne
- Povlašteni parking: ne
- Garaža: ne
Režije - odvojene
- Struja
- Voda
Vrsta grijanja
- Klasično
- Centralno
- Klima uređaj
Izvor topline
- Struja
- Drva
Infrastruktura
- Voda
- Struja
- Kanalizacija
- Internet
Pogled
- otvoren pogled
- Pogled na more: da
- Pogled - prekrasan!
Orijentacija
- Istok
- Udaljenost od mora: 1. red
Opis okruženja
- Centar
- U mirnoj ulici
- U blizini javnog prijevoza
- U blizini škole/vrtića/igrališta
- U blizini trgovine
- U blizini crkve
- U blizini mora/plaže
- U blizini parka/šume
Pošaljite upitPošaljite upit
Slične nekretnine
-
Opatija-Bregi, prodaje se prekrasna luksuzna villa 300m2
- Lokacija
- Bregi - Matulji
Prodaje se prekrasna nova moderna villa u Bregima nedaleko Opatije. Izuzetna... -
Opatija - luksuzna villa sa bazenom i otvorenim pogledom na more
- Lokacija
- Opatija - Centar - Opatija
Prodaje se kompletno uređena i luksuzno opremljena villa sa predivnim... -
Trakošćan | Moderna vila 125m2, jacuzzi i sauna
- Lokacija
- Brezova Gora - Bednja
Remax Centar Nekretnina predstavlja ekskluzivni projekt novogradnje smješten... -
Istra, Savudrija okolica, autohtona vila s bazenom
- Lokacija
- Savudrija - Umag
Predstavljamo ovu prekrasnu vilu smještenu u okolici Savudrije, na samom... -
Kraljevica, Šmrika, vila s bazenom i pogledom na more
- Lokacija
- Šmrika - Kraljevica
Prodaje se samostojeća kvalitetno izgrađena vila koja se smjestila na mirnoj... -
Otok Krk - Kornić, luksuzna kuća s pogledom na more
- Lokacija
- Kornić - Krk
Na otoku Krku, u mjestu Kornić imamo u prodaji predivnu luksuznu kuću sa... -
Motovun - okolica, moderna vila sa prekrasnim pogledom
- Lokacija
- Vrh - Buzet
Na pola puta između Motovuna i Buzeta, na samom vrhu brežuljka smještena je... -
Istra, Umag, lijepa kamena kuća sa bazenom
- Lokacija
- Vilanija - Umag
Na prodaju je lijepa kamena kuća u okolici Umaga sa pogledom na more. Kuća je... -
OTOK KRK-OMIŠALJ moderna villa sa bazenom na prodaju
- Lokacija
- Omišalj
Prodaje se villa, u naravi dvojni kuća sa svojim vrtom i bazenom. Villa se...
Copyright © 2025. RE/MAX Lux, Sva prava pridržana









